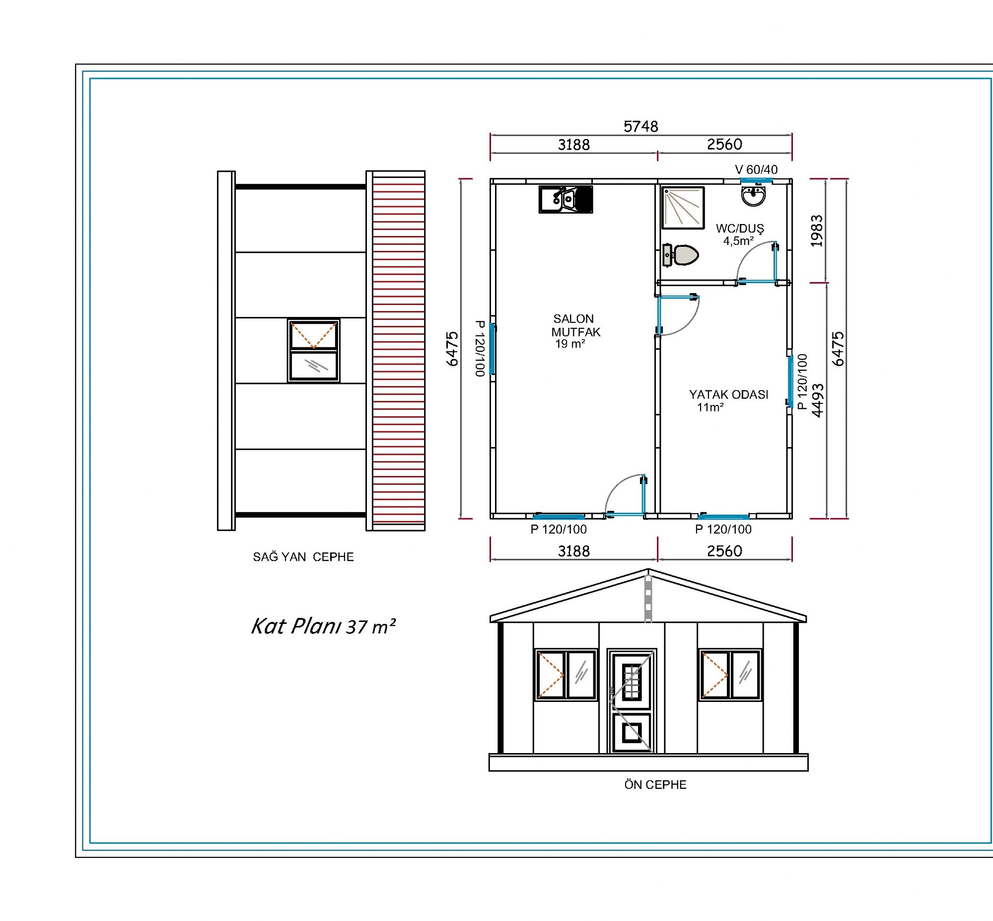
37 m² Prefabrik

Instagram
×