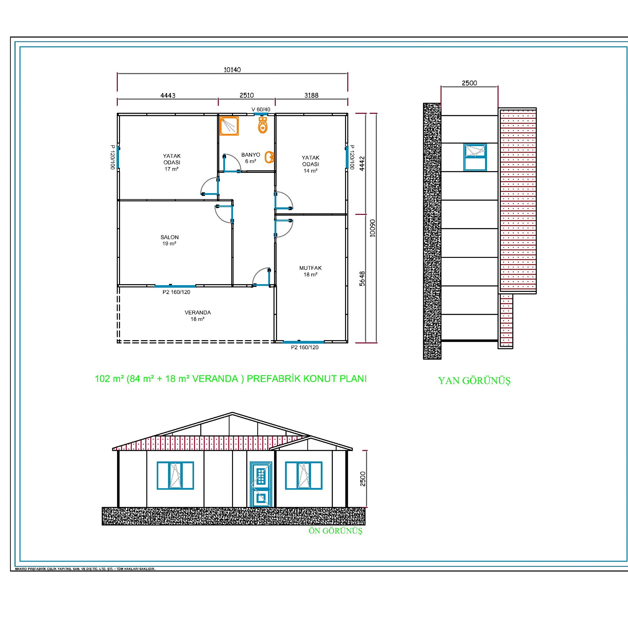
102 m² Prefabrik

Instagram
×